REQUEST A TOUR If you would like to see this home without being there in person, select the "Virtual Tour" option and your agent will contact you to discuss available opportunities.
In-PersonVirtual Tour

Listed by Preston Thomas • Colliers Tingey International Inc.
$ 775,000
Est. payment | /mo
37,026 SqFt
$ 775,000
Est. payment | /mo
37,026 SqFt
Key Details
Property Type Vacant Land
Sub Type Unimproved Land
Listing Status Active
Purchase Type For Sale
Square Footage 37,026 sqft
Price per Sqft $20
MLS Listing ID CRSC25196839
HOA Y/N No
Lot Size 0.850 Acres
Property Sub-Type Unimproved Land
Source Datashare California Regional
Property Description
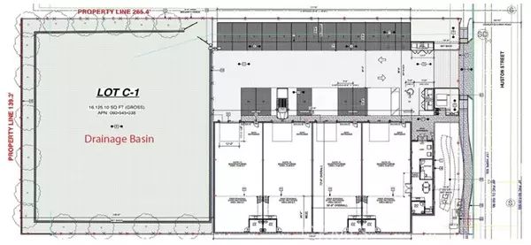
Prime industrial/warehouse zoned lot in Grover Beach with building approvals for a multi-tenant metal warehouse. A rare opportunity in San Luis Obispo County where warehouse land is scarce. 11,926 +/- SF Total Building Area: Configurable as a single warehouse or divisible into four 2,000–3,000 SF suites. High Ceilings: Up to 32’ clear height, ideal for versatile industrial uses. Ample Parking: Supports many use types. Most Popular Product Type: Small warehouse units are in high demand with ever increasing rents. Plans Fully Approved by the City of Grover Beach: Streamlined development process. Flexible Use: Perfect for owner-users or investors seeking a high-demand commercial real estate asset. Versatility: Versatile lot for warehouse/industrial/yard uses; current approvals optional, new project design possible. This lot’s desirable price point, building approvals, size and zoning make it a standout investment in the hot warehouse market. Don’t miss out on this scarce opportunity to develop a premium warehouse property in Five Cities.
Location
State CA
County San Luis Obispo
Interior
Fireplace No
Exterior
View None
Building
Lot Description Level

© 2025 BEAR, CCAR, bridgeMLS. This information is deemed reliable but not verified or guaranteed. This information is being provided by the Bay East MLS or Contra Costa MLS or bridgeMLS. The listings presented here may or may not be listed by the Broker/Agent operating this website.
GET MORE INFORMATION

Vander Meulen Real Estate Group
Broker, REALTOR® | Lic# 00842213 | Lic# 02150745




